大塚商事

四万十市・土佐清水市・宿毛市・黒潮町など幡多地域で賃貸・不動産をお探しの方

更新

具同地区、4DKの中古住宅

外観
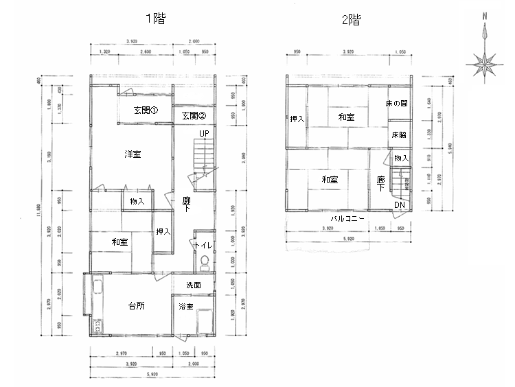
4DK間取り図
外観
玄関2
玄関1
洋室
洋室
和室へ
4.5畳の和室
和室
DKと洗面
DK
DK横の南側テラス屋根部分
DKと和室
洗面と浴室
DKと和室から廊下へ
廊下から玄関2
トイレ
2階へ
二間続きの和室
南側和室
バルコニー
二間続きの和室
和室北側から
和室北側
和室北側
和室北側から
外観
価格
商談中
種別
中古戸建
間取
4DK
所在地 高知県四万十市渡川2丁目
交通 土佐くろしお中村・宿毛線 具同駅 徒歩19分

詳細情報

徒歩圏内に、スーパー、コンビニ、病院、郵便局などがあり、生活に便利な立地です。

駐車スペースは、建物玄関前に軽自動車1台のみとなります。

間取り図に記載はありませんが、1階南側にテラス屋根があり、洗濯機はそちらに。。。

この半分囲われたテラス屋根部分、趣味の場所としても活用できそうです。

2階には、日当たり抜群のバルコニーもあります。

内見は鍵の準備がありますので、事前にご予約ください。

物件詳細情報

築年月 1976/8 新築/中古 中古
面積 105.61m² 計測方式
バルコニー 向き
建物階数 地上2階  部屋階数
建物構造 木造
間取内容
1階-洋室7.0、和室4.5、DK6.0 2階-和室6.0、和室6.0
駐車場 取引態様 仲介
引渡/入居時期 相談 現況 空家
地目 宅地 用途地域 第二種中高層住居専用
都市計画 非線引き区域 地勢 平坦
土地面積 121.75m² 土地面積計測方式 公簿
建ぺい率 60% 容積率 200%
接道方向1 接道間口1
周辺環境 市立具同小学校 徒歩7分 市立中村西中学校 徒歩29分
よどやドラッグ 徒歩5分、ローソン四万十具同田黒店 徒歩7分、フジグラン 徒歩13分、マルナカ四万十店 徒歩15分、四万十トンボ郵便局 徒歩6分、大野内科 徒歩5分、川村歯科 徒歩6分など その他、皮膚科、耳鼻咽喉科、飲食店、お弁当屋さんなど徒歩圏内
設備・条件
物件番号 2226
Loading...
※物件掲載内容と現況に相違がある場合は現況を優先と致します。

    大塚商事へのお問い合わせ

    なんでもお気軽にご相談ください。
    オンラインでの対応をご希望の方はお申し出ください。ご相談からご契約(IT重説)まで対応いたします。
    まずは、お電話、メールフォームからご連絡ください。

    お電話でお問い合わせ

    0880-35-3729

    営業時間 9:00~18:00

    フォームでのお問い合わせ

    連絡方法必須

    個人情報保護方針を必ずご確認ください。